485 11TH AVENUE NST PETERSBURG, FL 33701




Mortgage Calculator
Monthly Payment (Est.)
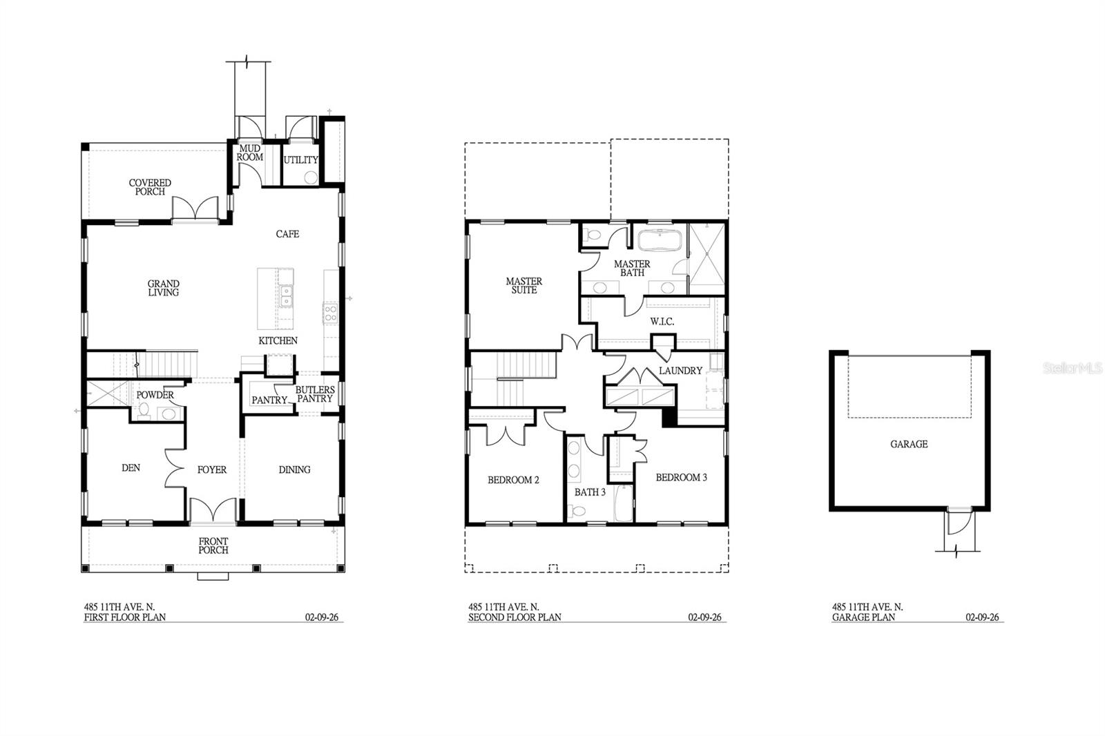
$7,186Under Construction. Luxury new construction by Mobley Homes Custom LLC, one of Tampa Bay’s premier builders, located near Crescent Lake and Historic Old Northeast with NO flood insurance required. Built with hurricane-rated half concrete block construction on the first floor, this home offers durability, energy efficiency, and long-term value.This 4-bedroom, 3.5-bath home features an open-concept layout with high ceilings, Level 4 smooth drywall, and abundant natural light. The gourmet kitchen includes designer cabinetry, premium countertops, a large island, and high-end stainless steel appliances. The primary suite offers a spa-like bath with 12x24 Asian Statuary Marble from TileBar. Situated on a quiet residential street just minutes from Crescent Lake Park, Downtown St. Petersburg, and Central Avenue dining, shopping, and entertainment. Easy access to I-275, St. Pete Beach, and Tampa International Airport. The backyard includes alley access, a 2-car garage, and room for a pool or outdoor living space. Mobley Homes Custom LLC builds and owns all of their homes—no third-party investors—ensuring a smooth process and direct builder support after closing.Photos are of a similar home with the same floor plan. Finishes and features may vary.
| 2 hours ago | Listing updated with changes from the MLS® | |
| 2 hours ago | Status changed to Active | |
| yesterday | Listing first seen on site |
Listing information is provided by Participants of the Stellar MLS. IDX information is provided exclusively for personal, non-commercial use, and may not be used for any purpose other than to identify prospective properties consumers may be interested in purchasing. Information is deemed reliable but not guaranteed. Properties displayed may be listed or sold by various participants in the MLS Copyright 2026, Stellar MLS.
Last checked: 2026-04-15 11:19 PM EDT
Did you know? You can invite friends and family to your search. They can join your search, rate and discuss listings with you.