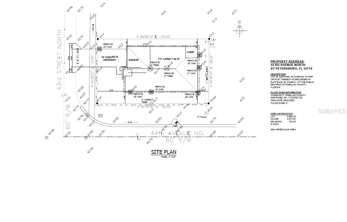
4403 43RD STREET NST PETERSBURG, FL 33714




Mortgage Calculator
Monthly Payment (Est.)
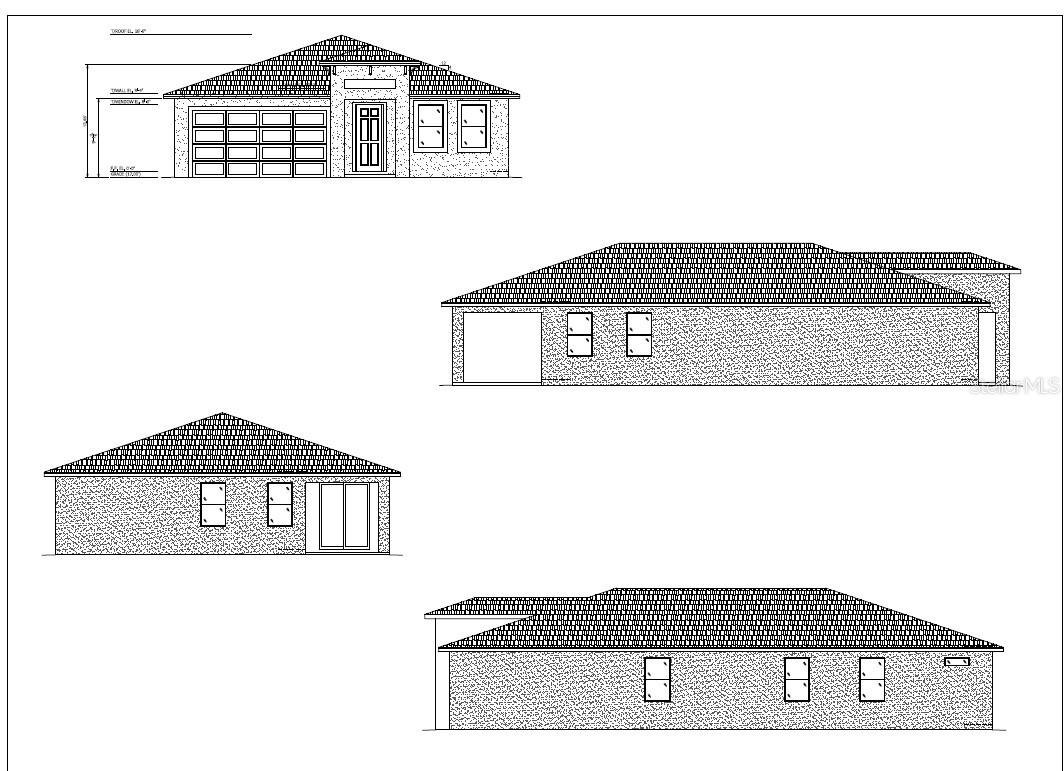
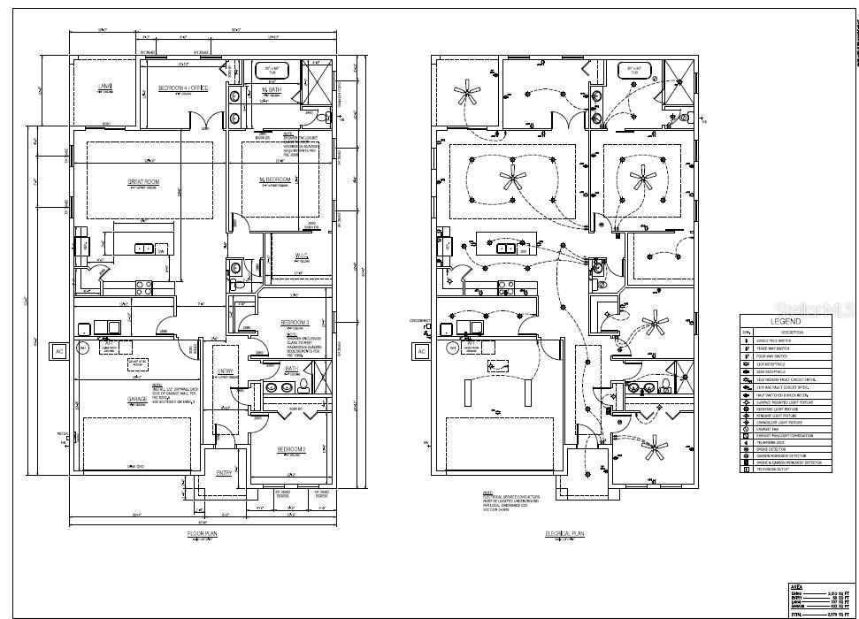
$2,961Under Construction. PROGRESS! New photos will be posted as progress moves forward.... HINT**SAVE IT IN FAVORITES TO WATCH THE PROGRESS THROUGH PHOTOS UP TO THE GRAND FINALE.THIS IS YOUR NEXT HOME... No FLOOD insurance required & NO HOA. This Modern home is expected to be completed in June 2026. Its contemporary style invites you to enter through a stylish door where you will discover an open bright split floor plan featuring beautiful vinyl wood style floors, a modern kitchen with oversized island blanketed with a stone countertop which flows like a waterfall down the sides. Additional features include stainless steel matching appliances, a closet pantry for additional storage, recess lighting, & custom vent hood. Imagine the gatherings & meals that can be prepared here. The open GREAT room has a tray ceiling with oversized fan and glass doors that lead you to a private back porch and vinyl fenced in yard, the perfect place to relax and unwind. Double doors lead to a study, a perfect place to have a home office. The rooms have power outlets on the walls ready for the T.V s to be mounted with out additional tv cabinet. Additionally, the master suite has a tray ceiling, an oversized walk-in closet, and an on-suite bathroom with tiled shower, seamless glass doors, modern tub and double sink vanity. Conveniently located near shopping, restaurants, International Airports, Top Rated Beaches, & Down Town St Pete. . Final design and exterior finishes may vary. Inquires welcome for additional information.
| yesterday | Listing updated with changes from the MLS® | |
| 2 days ago | Listing first seen on site |
Listing information is provided by Participants of the Stellar MLS. IDX information is provided exclusively for personal, non-commercial use, and may not be used for any purpose other than to identify prospective properties consumers may be interested in purchasing. Information is deemed reliable but not guaranteed. Properties displayed may be listed or sold by various participants in the MLS Copyright 2026, Stellar MLS.
Last checked: 2026-03-01 08:25 PM EST
Did you know? You can invite friends and family to your search. They can join your search, rate and discuss listings with you.